100+
Plans per year
24h
Expert-level design
€49,95
Starting from
🤲🏼 A dream team
We’re Dafne and Rimaan: two architects with over 24 years of combined experience in design, strategy, and the housing market. We’ve advised everyone from curious homebuyers to large-scale developers. Together, we bring sharp spatial insight and strong execution. Strategic, fast, and to the point.
You're in good hands.
🔎 Your questions answered
We will provide you with the confidence and knowledge to transform your house into your dream home.
Quick Fixes, Big Impact
Can I add an extra bedroom?
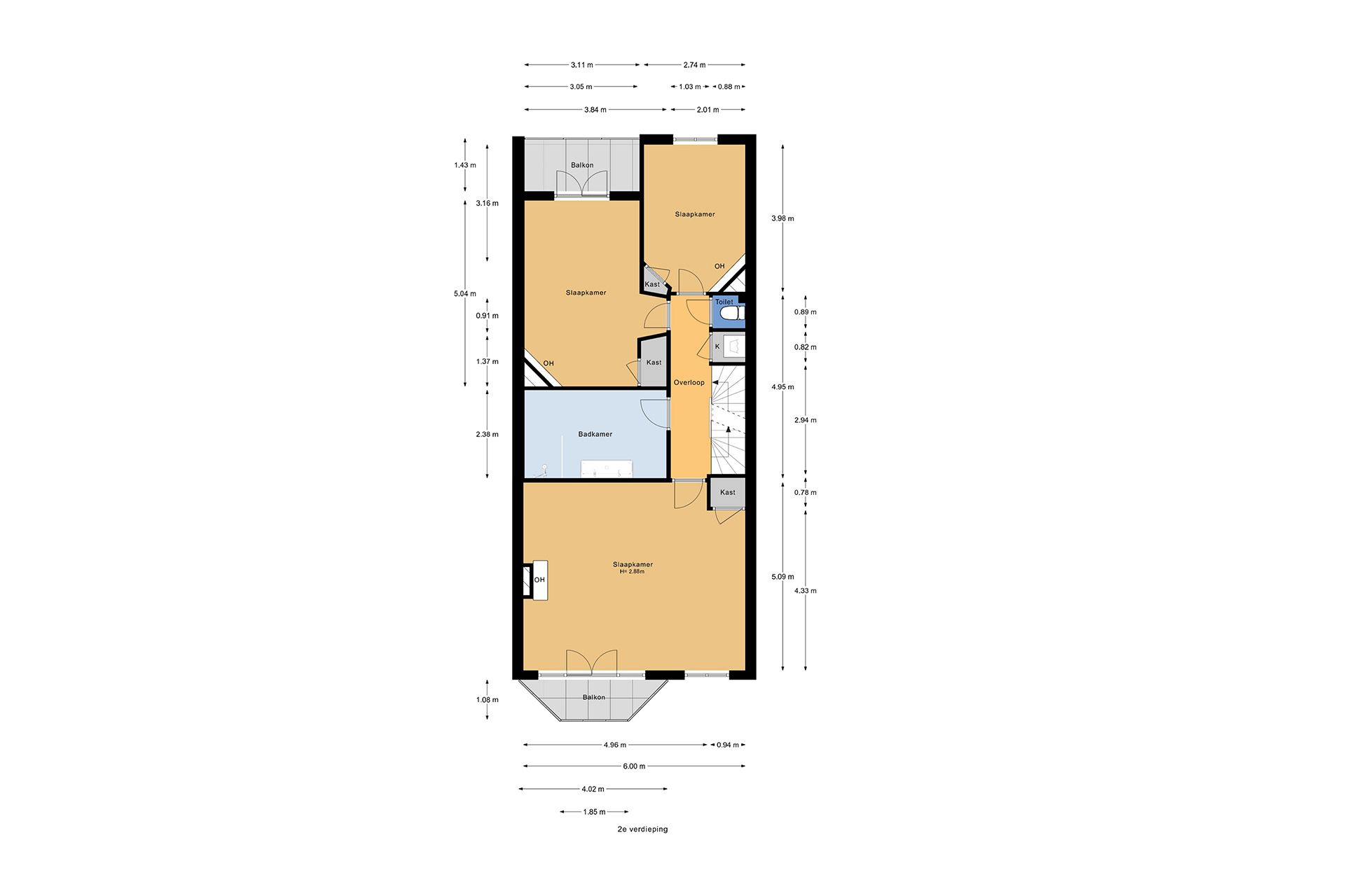
The owners wanted to know if they could fit an extra bedroom into their home. We analysed the existing layout and proposed a solution that allowed space for a new room, while keeping the changes minimal. By cleaning up the layout, the usage and flow became more natural.


How to fit a bathtub?
The owners wanted to know how to fit a bathtub into their bathroom without major plumbing work. We proposed a solution that allowed space for a comfortable tub, while keeping the pipework minimal. A small shift with the sink made a big difference.
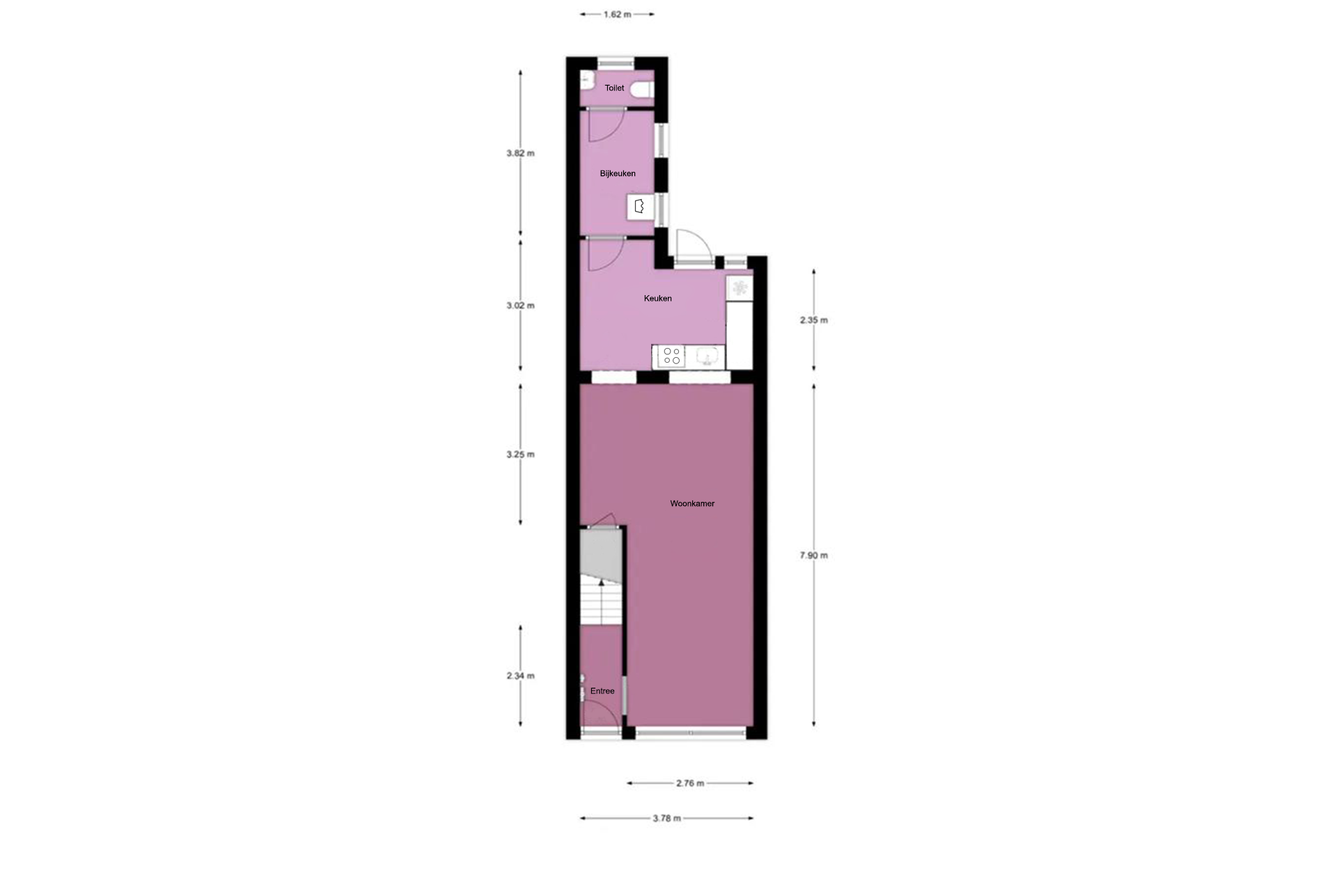
How to optimize this layout?
The owner wanted an apartment with a spacious bedroom and bathroom. We extended the hallway and created a new acces to the bathroom without too much extensive plumbing renovations.


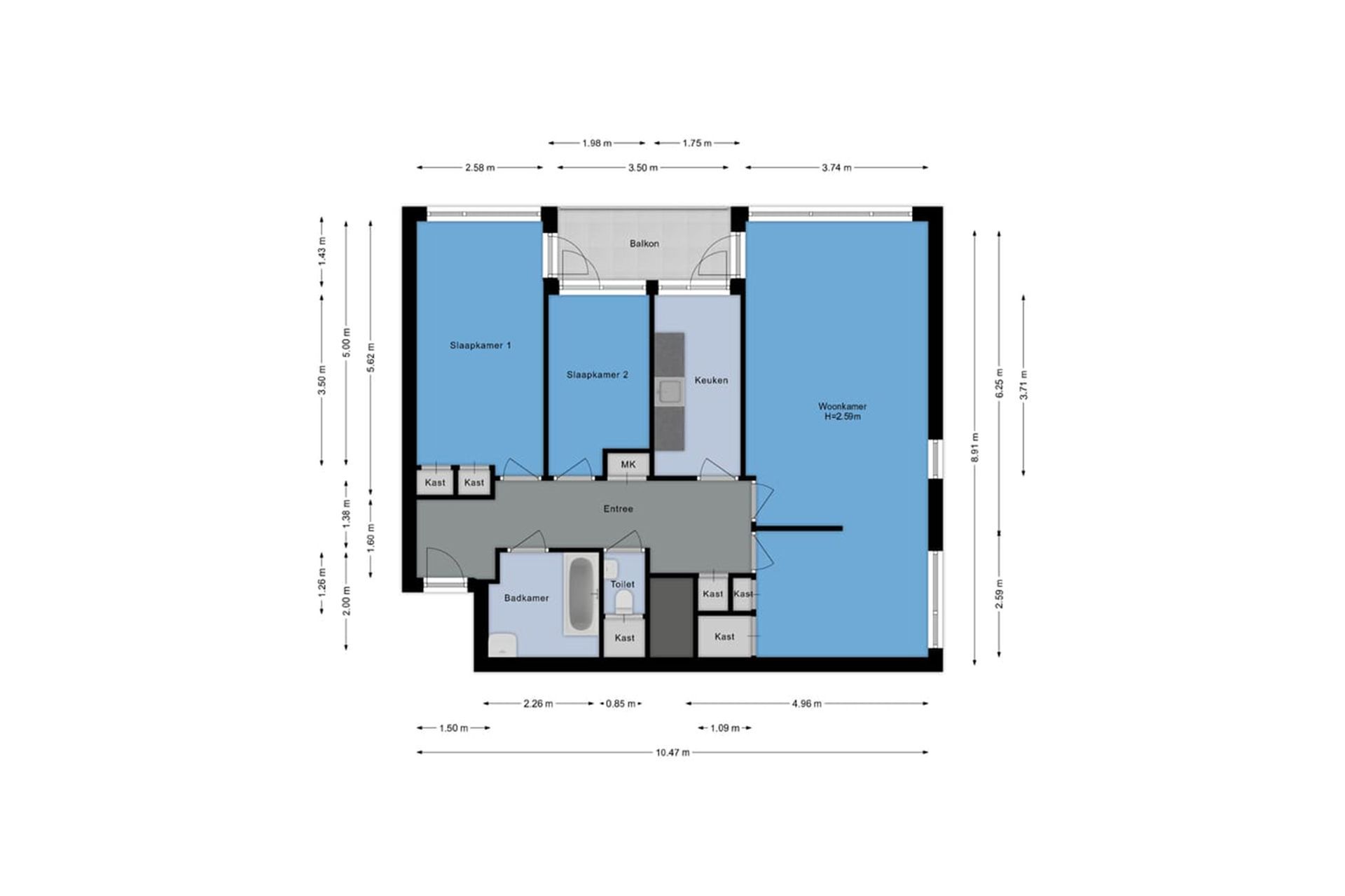
How to connect the kitchen?
The current floor plan was very closed-off and the kitchen was very small with almost no countertop space. Just by opening up a structural wall, placing an island for cooking and a large sink and cabinet area the kitchen and living room became one well connected space.
What do others think?
Don't just take it from us
Elaine
“I went Funda shopping, they helped me make my choice and they are cute."
Maria
“With the new layout suggestions we were sure we could make the right renovation!"
Lex
“This helped us a lot to make good decisions for our new home.”
FAQ ❓
Blog
Our latest thoughts







